PRR – Refuncionalização da EB1 do Paço para Centro de Alojamento Temporário
IDENTIFICAÇÃO
“PRR – Refuncionalização da EB1 do Paço para Centro de Alojamento Temporário (BNAUT)”

LOCALIZAÇÃO
Rua da Relvinha, Paço, Coimbra.

DESCRIÇÃO GERAL ADMINISTRATIVA
EB1 do Paço – a escola insere-se num terreno localizado na Rua da Relvinha, Paço, na União de Freguesias de Souselas e Botão, concelho de Coimbra.
PROJECTO
Estudo Prévio: Divisão de Projetos de Edifícios e Equipamentos Municipais
Projeto Especialidades: Sistene, Engenharia, Lda.
DESCRIÇÃO GERAL DO EDIFÍCIO

MEMÓRIA DESCRITIVA
Foi celebrado a 30 de janeiro de 2022 um Protocolo de colaboração no âmbito das candidaturas ao Aviso N.º 2/C02-IO2/2021 – Bolsa Nacional de Alojamento Urgente e Temporário (BNAUT) – entre a Câmara Municipal de Coimbra (CMC) e a Comunidade Intermunicipal da Região de Coimbra (CIM-RC).
Na sequência deste protocolo, foi solicitado pela Sr.ª Vereadora Dr.ª Ana Maria Cortez Vaz, a execução do Projeto de refuncionalização da Escola Básica Nº1(EB1) do Paço.
Atualmente a escola encontra-se devoluta e apresenta diversas condições que potenciam uma adaptação a espaço de albergue temporário, procurando-se neste sentido a refuncionalização da escola para Centro de Alojamento Temporário (CAT).
A escola localiza-se no Paço, na União de Freguesias de Souselas e Botão, numa zona afastada do movimento, em área tranquila, com acesso fácil a transportes públicos.
A escola faz parte das Escolas dos Centenários, seguindo o esquema habitual, ou seja, encontra-se dividida em duas partes, a área masculina e feminina, com duas entradas distintas e uma sala de aula cada, aquecidas por uma lareira e uma salamandra existentes em cada uma delas.
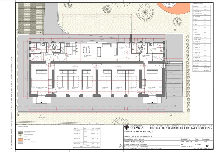
Pretende-se a refuncionalização da escola para Centro de Alojamento Temporário (CAT), de acordo com o seguinte programa proposto: definir um espaço com áreas de estar comuns/lazer e zonas para estadia e dormida, com respetivos apoios sanitários, organizado da seguinte forma, ao longo de um único piso.
Rés do chão:
1 Sala comum com copa;
4 IS acessíveis;
2 Arrumos (despensa/lavandaria);
1 Gabinete vigilante;
1 Sala comum;
6 quartos/dormitórios (3 individuais, 2 triplos e 1 duplo).
Com o objetivo de respeitar o edifício existente, e de maior economia de meios, definiram-se os espaços no edifício da escola, acrescentando-se apenas um alpendre a Nordeste e uma pérgola a Sudeste. Prevêem-se alterações de modo a tornar o edifício acessível a pessoas com mobilidade condicionada. Procura-se a reabilitação deste edifício tendo, igualmente, por base, a melhoria do desempenho energético do mesmo, garantindo a melhoria de, pelo menos, 10% em relação ao indicador de desempenho de Aquecimento ou de Arrefecimento, sendo que esta melhoria será atestada mediante a respetiva certificação energética.

Alçados – proposta
![]() |
![]() |
Planta do Piso 0 – proposta

Planta da Cobertura – proposta
DESCRIÇÃO SUMÁRIA DOS TRABALHOS
I. DEMOLIÇÕES
Demolições pontuais em paredes divisórias de acordo com o projeto (zona das instalações sanitárias, despensa e lavandaria); Demolição de paredes para abertura de vãos exteriores (Norte e Nascente); Levantamento de todas as caixilharias; Remoção de pavimento vinílico;
Remoção de louças sanitárias, torneiras e bancadas; Remoção de prateleiras na despensa;
Levantamento de portas assinaladas nas peças desenhadas; Levantamento de barra de lambrim, nas paredes a ser intervencionadas; Demolição das lareiras; Remoção das salamandras; Remoção de cerâmicos juntos das salamandras; Demolição de piso sobrelevado junto das salamandras; Demolição de piso sobrelevado junto das lareiras; Aberturas de vãos interiores nas paredes transversais da escola (Exceto a poente); Alargamento de vãos interiores que comunicam a zona dos quartos com a zona das instalações sanitárias; Remoção e armazenamento de mobiliário; Remoção e armazenamento de quadros; Remoção de luminárias; Remoção de portas das instalações sanitárias; Alteração do pavimento exterior de acordo com peças desenhadas.
II. AMPLIAÇÃO / CONSTRUÇÃO
Construção das paredes divisórias dos quartos, instalações sanitárias, despensa, lavandaria, antecâmara de entrada; Construção de rampa de acesso ao espaço interior com estrutura de betão; Execução de pavimento sobrelevado em toda a ala Norte, com passagem da ventilação para o novo limite a Norte; Execução de zona de muro técnico junto do portão de acesso automóvel; Definição de zona de estacionamento exterior; Redefinição de pavimentos exteriores de acordo com peças desenhadas – Projeto de Arranjos Exteriores; Consolidação das escadas exteriores – acesso pedonal a Sudoeste; Execução de pérgolas a Norte e Nascente; Parede Norte junto da sala comum executada em caixilharia de alumínio e vidro, protegidos por Estores e Quebra sol; Construção de área técnica exterior, próxima do estacionamento, com acesso facilitado.
III. COBERTURA
Levantamento da Cobertura do edifício; Realização de nova cobertura em telha cerâmica lusa; Isolamento e impermeabilização de laje cobertura.
IV. PAREDES EXTERIORES
Manutenção das paredes exteriores com correção de fissuras e fendilhações; Limpeza de líquenes e eflorescências das paredes exteriores; Remoção de pintura descascada, Uniformização dos panos de parede; Limpeza de eflorescências e líquenes, nas pedras e colmatação de fissuras; Fecho de juntas das pedras calcárias com argamassa adequada; Muros exteriores: aplicação de primário e pintura; Paredes exteriores de alvenaria a renovar com o sistema de impermeabilização de fachadas, aplicação de primário branco e pintura, após desinfeção, reparação e estabilização das fissuras.
V. PAREDES INTERIORES
Limpeza, desinfeção e tratamento das fissuras e armaduras oxidadas das paredes interiores a manter; Paredes interiores com aplicação de e pintura; Instalações sanitárias/Cozinha: revestimento cerâmico, aplicados até ao teto. Revestimento cerâmico aplicado entre móveis. Nas restantes zonas que não têm cerâmico, será aplicado primário e serão pintadas; Teto da cozinha: aplicação de primário e pintura; Paredes novas a executar em alvenaria de tijolo, à exceção das paredes divisórias dos quartos, executadas em gesso cartonado, com isolamento acústico.
VI. CAIXILHARIAS
Levantamento integral de todas as caixilharias, com exceção dos vãos de madeira do Quarto do Vigilante e da Sala Comum da Zona dos Quartos, que são para recuperar e pintar; Substituição das caixilharias por alumínio lacado, com corte térmico e vidro duplo batente, oscilobatente, basculante e fixa; Fator solar dos vidros e coeficiente de transmissão térmica em conformidade com o estudo prévio do Projeto de Especialidades – Térmica; Portas de madeira do Quarto do Vigilante e da Sala Comum para recuperar e pintar; Verificação do estado dos alçapões e colocação de escada retrátil nos alçapões do Quarto do Vigilante e da Sala Comum da zona dos quartos, para acesso à cobertura.
VII. ESTORES
Estores exteriores de obscurecimento de lâminas orientáveis, com caixa de estore visível, motorizadas, com caixa de mecanismo e proteção por chapa frontal, guias laterais em alumínio e calha inferior.
VIII. QUEBRA-SOL
Telas interiores: estores de enrolar interiores, em todos os espaços habitáveis.
IX. PARAPEITOS
Manutenção dos parapeitos em pedra dos vãos. Limpeza e colmatação de fissuras; Realização de parapeitos em pedra calcária nos novos vãos.
X. SOLEIRAS
Realização de soleira em pedra calcária nos novos vãos, assegurando um desnível máximo de 2cm.
XI. SERRALHARIAS
Tratamento de toda a vedação existente, portões, perfis metálicos, com limpeza a jato de areia, escovagem/lixagem e desengorduramento. Aplicação de Conversor de ferrugem, primário e pintura.
XII. PORTAS INTERIORES
Recuperação das portas exteriores em madeira na cor natural, incluindo raspagem e envernizamento e revisão ou substituição de ferragens; Portas em madeira de média densidade, espessura de 47mm, revestida com dupla folha de HPL de 3mm e preenchimento com poliestireno expandido (EPS) no interior incluindo aros e guarnições. Dobradiças, puxadores de muleta, roseta, entrada de chave, batente de porta; Porta de batente em vidro temperado fosco, espessura de 10mm na entrada da lavandaria e da despensa, com vidro fixo; Portas de correr à face, em madeira de média densidade, espessura de 47mm, revestida com dupla folha de HPL de 3mm e preenchimento com poliestireno expandido (EPS) no interior incluindo aros e guarnições, nas instalações sanitárias; Portas de correr embutida, em madeira de média densidade, espessura de 47mm, revestida com dupla folha de HPL de 3mm e preenchimento com poliestireno expandido (EPS) no interior incluindo aros e guarnições, nas instalações sanitárias; Porta de vai-vém em madeira de média densidade, espessura de 47mm, revestida com dupla folha de HPL de 3mm e preenchimento com poliestireno expandido (EPS) no interior incluindo aros e guarnições.
XIII. AROS E GUARNIÇÕES
Aros e guarnições nas portas novas em HPL.
XIV. ARMÁRIOS
Armários em MDF revestidos com dupla folha de HPL, incluindo prateleiras e varões amovíveis, na entrada, nos quartos, na lavandaria e despensa, tal como peças desenhadas.
XV. ARMÁRIOS/BANCAS
Banca de cozinha/copa contínua a definir; Cozinha/Copa em aglomerado de resina fenólica, com pia em inox, combinado, forno, placa de indução, micro-ondas e exaustor de acordo com o desenho.
XVI. PAVIMENTOS
Picagem e remoção de todo o pavimento cerâmico existente na sala comum dos quartos e no quarto do vigilante; Nivelamento do piso da sala comum dos quartos e do quarto do vigilante; Levantamento de todo o pavimento em vinílico dos quartos, sala comum dos quartos, quarto do vigilante e circulação de quartos salas de aula e gabinetes; Assentamento de pavimento vinílico decorativo, em régua sobre tela isolante, incluindo betonilha de enchimento na espessura necessária nos quartos, sala comum dos quartos, quarto do vigilante e circulação de quartos salas de aula e gabinetes; Pavimento das Instalações Sanitárias, Copa/Cozinha, Átrios, Circulações, Despensa, Lavandaria em cerâmico; Pavimento da rampa exterior contínuo exterior tipo HD URBAN FLOORS. Aplicado sobre base em ABGE com 15cm de espessura, devidamente compactada, com pendentes de escoamento de águas igual ou superior a 1%, conforme fabricante e peças desenhadas; Tapete de exterior de face dupla em perfis metálicos alternados com perfis de borracha com separadores, aparafusados ao pavimento sendo da largura das portas e com 1,20 de comprimento no Acesso; Perfis de separação de pavimentos em aço inox.
XVII. RODAPÉS / RODAMÃOS /GUARDA CORPOS
Levantamento do rodapé em madeira e aplicação de rodapé em madeira lacada igual às portas e guarnições, com altura mínima de 11cm; Levantamento do embasamento em pedra calcária do pátio coberto; Guarda-corpo na rampa em vidro laminado 20mm com apoio junto ao pavimento executado por perfis metálicos de acordo com o pormenor.
XVIII. TETOS
Teto falso em gesso cartonado, pintado à cor branco mate nas instalações sanitárias, despensa, lavandaria, copa/cozinha, sendo hidrófugo nas zonas húmidas. Nas zonas sem sancas, os remates são feitos com perfil alheta de alumínio lacado na cor branco mate. Inclui sistema de fixação, cortes, remates, fecho de juntas, todos os trabalhos e materiais necessários, conforme peças desenhadas; Teto falso em gesso cartonado, pintado à cor branco mate na sala comum, acesso, circulações e quartos. Nas zonas sem sancas, os remates são feitos com perfil alheta de alumínio lacado na cor branco mate. Inclui sistema de fixação, cortes, remates, fecho de juntas, todos os trabalhos e materiais necessários, conforme peças desenhadas; Teto rebocado e pintado à cor branco mate na sala comum dos quartos e no quarto do vigilante.
XIX. ILUMINAÇÃO
Neste capítulo prevalece o Projeto de Especialidade – Eletricidade, mas tendo sempre em conta o aspeto estético em termos de cores e formato aqui descrito.
XX. ESPECIALIDADES
Isolamento térmico sobre as Lages dos tetos e no desvão da cobertura; Tomadas e equipamento elétrico tipo Efapel, ou equivalente, série Logus Animato BB; As instalações sanitárias acessíveis a pessoas de mobilidade concionada deverão ter sistema de alarme luminoso e sonoro, cujo terminal deverá ser colocado a uma altura do piso entre 40 a 60cm; Os estores exteriores de lâminas são reguláveis com comando elétrico; As cortinas blackout são reguláveis com comando elétrico; As Pérgolas Bioclimáticas são reguláveis com comando elétrico.
CONCURSO PARA A REALIZAÇÃO DA OBRA

EXECUÇÃO DOS TRABALHOS
A fiscalização, a gestão de contrato e a coordenação da segurança da obra é efetuada pelo Departamento de Edifícios e Equipamentos Municipais.
))

